2025 Holiday Market
2025 Holiday Market

2025 Holiday Market

Product Details

Hello Ferndale Members! It's time for our Holiday Market! Please read the Holiday Market Info and Holiday Market FAQ sections for all need-to-know info and instructions on selecting your table. 

If spaces are unavailable please 
Sale Date + Times
  • Saturday, December 6th: 10:00 AM - 8:00 PM
  • Sunday, December 7th: 10:00 AM - 5:00 PM
Reception with music, food, and drinks will be held on Saturday, December 6th: 5:00 PM - 8:00 PM.

 

Holiday Market Info

Space Selection:

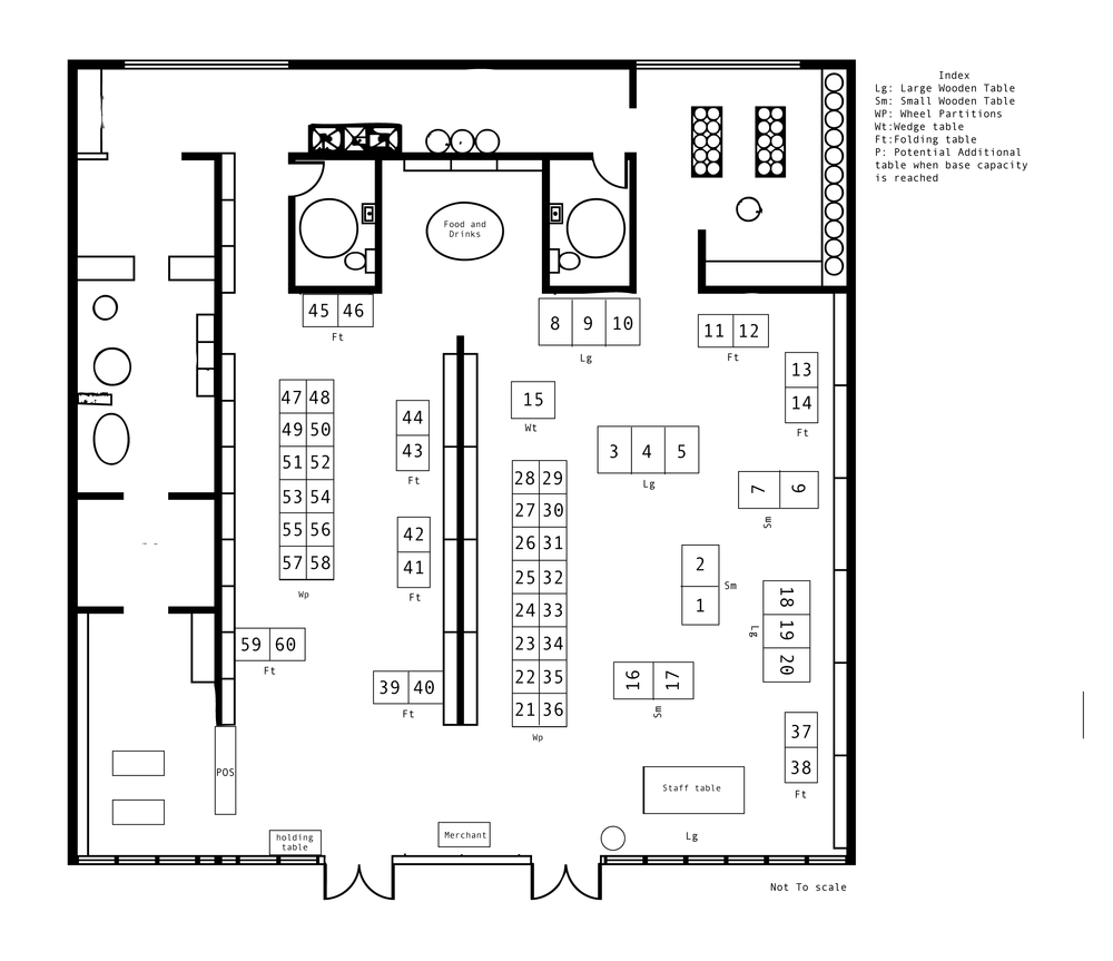
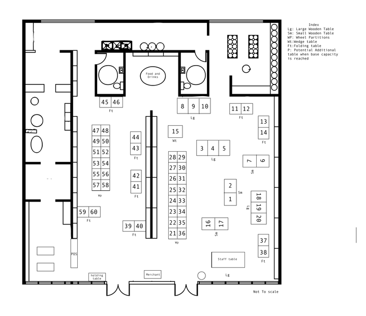
For our 2025 Holiday Market, we have split table spaces as well as spaces on the large table set over the Wheels. If you need more space, please purchase multiple spaces next to each other (limit of 2).

View image #2 for the table map and select from the drop-down option. 

    If all existing spaces have been filled, please reach out to Lisa! 

    Important Dates + Times:

    Firing Deadlines:


    Start firing your work now so you're ready in time for the Market! 

    Bisque Deadline: Sunday, November 16th (EOD)

    Cone 5 and Cone 10: Sunday, November 23rd (EOD)

    Luster Deadline: Sunday, November 30th (EOD

     

    Set-Up:
    Members may begin setting up their space on: 
    • Friday, December 5th: 5:00 PM (New Set up Time!)

    Holiday Market Date + Times:
    Market Hours:
    • Saturday, December 6th: 10:00 AM - 8:00 PM
    • Sunday, December 7th: 10:00 AM - 5:00 PM

    A reception with food, drinks, and music will be held on Saturday, December 6th: 5:00 PM - 8:00 PM. 



    Clean-Up: Begins:
    • Sunday, December 7th: 5:00PM

    We ask that all participating members of the Holiday Market assist in restoring the studio to its original state! 

    Promotional Marketing Deadline: We love to highlight our members in our Market promo efforts! Please email a photo of your work and the name you would like us to credit for a chance to be featured in social media graphics, flyers, and newsletter by October 15th: Lisa@stilllifeceramics.com 
    Spring Market FAQ

    Frequently Asked Questions:

    Is there a limit on how many spaces I can purchase?

    Please only purchase a maximum of two (2) spaces to make sure there is enough room for all members who would like to join.

    Can I work in the studio during the Market? 

    No, the studio will be fully closed from Friday, December 5th - Sunday, December 7th. All workstations, including wheels and glaze room, will be unavailable during these dates.

    What does Still Life provide for me?

    - Tables and table cloth

    - Pricing stickers

    - Bags and packing materials

    - SLS staff to process purchases and pack ceramics at the checkout stations 

    - Promotion via social media, physical flyers, and newsletter 

     

    What do I need to bring to the Market?

    - Priced ceramics (use our stickers or include your full name and $ on your own important!)

    - Display and props (optional, but recommended)

    - Cute table cloth

    - Display cubes, shelving units, etc to help create elevation on tables

    - Artist info: name, business cards, banners, signs

    - Additional decor ideas: flowers, twinkle lights, ect

     

    Do I have to be at the Market the whole time?

    No, however, having the artist in the studio is the best way to make connections with potential buyers. Share some insight, it goes a long way! It also keeps the studio looking full, especially if you're here to meet all the friends and family that you've invited to the market! 

     

    How will I get paid for my sales?

    Still Life will process all transactions and will have Checks available for you. Please allow 2 weeks to process these.

     

    Does Still Life take a percentage of the sales?

    Yes, to help cover costs, Still Life will receive 20% of sales.

     

    I can't participate in the Market, but I'd love to volunteer to help! Can I do that?

    Yes! We'd love for you to join us even if you aren't able to sell during the Market. We have multiple volunteer duties available and we will send out Volunteer Sign-Up info at a later date so keep an eye on your inbox.

     

    I'm participating in the Market, do I have to volunteer to help as well?

    Yes please! We ask that you sign up for at least (1) one shift to help our team keep everything running smoothly and efficiently. Volunteer Sign-Up info will be sent at a later date.

     

    Can I get a refund if I'm not able to participate in the Holiday Market?

    If you cannot participate and would like a refund, please notify us by November 16th so we or you can offer your spot to another member. We will not issue refunds for cancellations after this date.

    Liability & Safety

    All students must agree to the following upon registering for a class or workshop at Still Life Studio:

    Waivers and Safety for Ceramic Classes and Studio Use

    1. Students will follow all instructions by teacher
    2. Students will not load, unload or operate the kilns
    3. Long hair should be tied back
    4. Do not wear articles of clothing or jewelry that hang off the body.
    5. Closed footwear is required.
    6. Do not use any equipment without a staff member present.
    7. SLS will provide safety glasses or gloves upon request.
    8. All completed work must be picked up from Still Life Studio no later than 4 weeks after the student’s final class. Still Life Studio is not responsible for any work left longer than 4 weeks. It is the student’s responsibility to pick up their work.

    COVID-19 Liability Waiver

    I acknowledge the contagious nature of the Coronavirus/COVID-19 and that the CDC and many other public health authorities still recommend practicing social distancing. 

    I acknowledge that Still Life Studio has put in place preventative measures to reduce the spread of the Coronavirus/COVID-19.

    I acknowledge that Still Life Studio can not guarantee that I will not become infected with the Coronavirus/Covid-19. I understand that the risk of becoming exposed to and/or infected by the Coronavirus/COVID-19 may result from the actions, omissions, or negligence of myself and others, including, but not limited to, studio staff, and other studio clients and their families.

    I voluntarily seek services provided by Still Life Studio and acknowledge that I am increasing my risk to exposure to the Coronavirus/COVID-19. I acknowledge that I must comply with all set procedures to reduce the spread while attending my class.

    I agree to show proof of vaccination against COVID-19 to a SLS staff member upon arrival, or furnish a negative COVID-19 test result that was administered no more than seven days before my visit.

    I attest that:

    * I am not experiencing any symptoms of illness such as cough, shortness of breath or difficulty breathing, fever, chills, repeated shaking with chills, muscle pain, headache, sore throat, or new loss of taste or smell.

    * I have not traveled internationally within the last 14 days.

    * I do not believe I have been exposed to someone with a suspected and/or confirmed case of the Coronavirus/COVID-19. 

    * I have not been diagnosed with Coronavirus/Covid-19 and not yet cleared as non contagious by state or local public health authorities.

    * I am following all CDC recommended guidelines as much as possible and limiting my exposure to the Coronavirus/COVID-19.

    I hereby release and agree to hold Still Life Studio harmless from, and waive on behalf of myself, my heirs, and any personal representatives any and all causes of action, claims, demands, damages, costs, expenses and compensation for damage or loss to myself and/or property that may be caused by any act, or failure to act of the studio, or that may otherwise arise in any way in connection with any services received from Still Life Studio. I understand that this release discharges Still Life Studio from any liability or claim that I, my heirs, or any personal representatives may have against the studio with respect to any bodily injury, illness, death, medical treatment, or property damage that may arise from, or in connection to, any services received from Still Life Studio. This liability waiver and release extends to the studio together with all owners, partners, and employees.

    Liability Waiver

    In connection with my involvement in ceramic classes at Still Life Studio, I hereby release Still Life Studio, its agents, representatives, successors, or assignees, Still Life Studio management and employees, from all liabilities, actions, claims, damages, demands, costs, and expenses which I am now or in the future have against them, arising out of or in any way connected with my participation in art classes, including enroute to or from the program or its related events. I understand that the waiver includes, but is not limited to, all injuries to me and or loss of injuries to any personal property. I also understand that this waiver includes, but is not limited to, any claims that are based on my alleged negligence or any other action or inaction of any of the above parties.

    I also give Still Life Studio permission to publish in print, electronic, or video format the likeness or image of myself and/or my work for the general promotion of Still Life Studio and its programs.

    By enrolling in a class or workshop, I am acknowledging that I have read and understand the safety instructions and the liability waiver that have been outlined.

    Regular price$25.00
    /


    Recently viewed